Price £2,250 pcm - Available 20/10/2025 - Unfurnished


DESCRIPTION
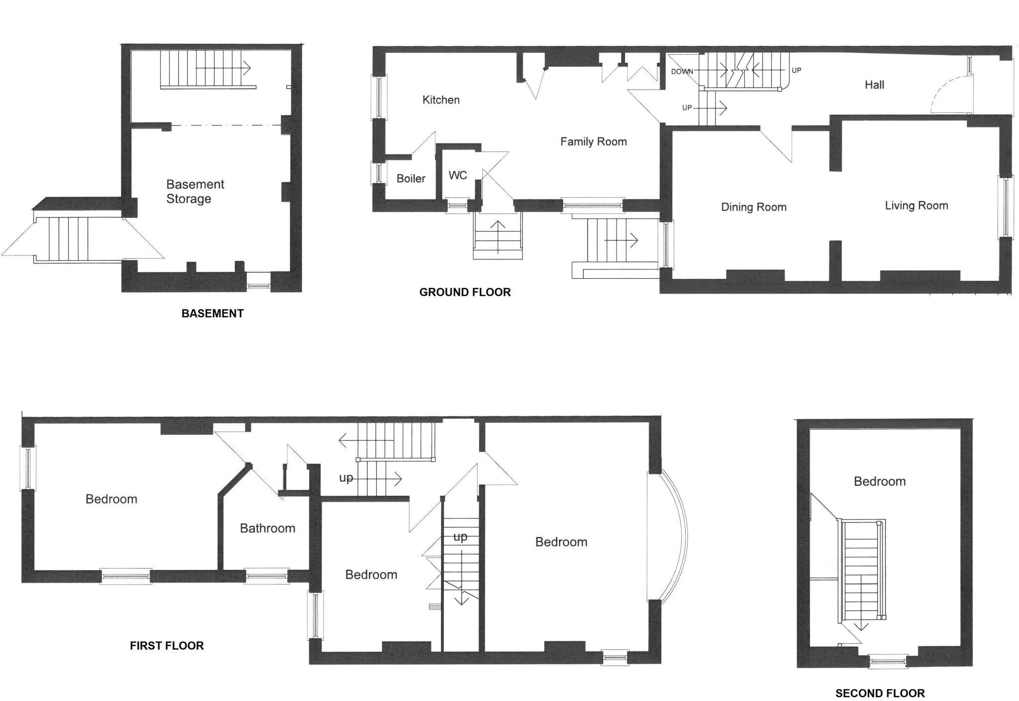
Situated just a short stroll from the heart of Tring High Street, with its wide selection of eateries, cafes, and restaurants, this substantial period home offers generous and versatile accommodation arranged over four floors. Available with no onward chain, the property combines charm and character with flexible living spaces, making it an ideal family home. On the ground floor, the welcoming entrance hall leads to a bright and spacious living room, separate dining room, and a well-proportioned family room that adjoins the kitchen. A useful cloakroom completes this level. The basement provides excellent storage space and potential for a variety of uses. The first floor offers three good-sized bedrooms along with a family bathroom, while the second floor boasts a further double bedroom, offering scope for a home office, guest room, or teenager's suite. Period features add character throughout, enhancing the appeal of this attractive home. Externally, the property benefits from private gardens, creating a peaceful setting for entertaining or relaxing. There is also the advantage of off-road parking a rarity so close to the town centre.

SITUATION
The historic small market town of Tring is surrounded by beautiful Chilterns countryside just a few miles away from routes providing excellent access to London. Tring town centre provides a range of small specialist shops, restaurants and public houses. Excellent schooling is available for all ages, including independent schools such as The Tring Park School for Performing Arts and the renowned Berkhamsted School. Connections are superb with access to the A41 (providing a direct link to the M25 J20) and from there the national motorway network. Tring main line station provides a fast and frequent service in to London Euston from 36 minutes.

LOCAL AUTHORITY
Dacorum Borough Council

VIEWING
By appointment with Cesare & Co, 48 High Street, Tring, Hertfordshire, HP23 5AG.

IMPORTANT NOTICE
Although these particulars, together with any photographs and/or any floor plans, are intended to give a fair description of the property, they do not constitute any offer or any part of a Contract. The Vendors, his Agents, Cesare & Co and persons in the employment do not give any warranty whatever in relation to this property. All measurements are approximate. Any appliances and/or services mentioned within these particulars have not been tested or verified by the Agent. All negotiations should be conducted through Cesare & Co.



Deposit: £2,596.00

Council Tax
Dacorum Borough Council, Band E

Notice
All photographs are provided for guidance only.

The following are permitted payments which we may request from you:

a) The rent
b) A refundable tenancy deposit (reserved for any damages or defaults on the part of the tenant) capped at no more than five weeks' rent where the annual rent is less than £50,000, or six weeks' rent where the total annual rent is £50,000 or above
c) A refundable holding deposit (to reserve a property) capped at no more than one week's rent
d) Payments to change the tenancy when requested by the tenant, capped at £50, or reasonable costs incurred if higher
e) Payments associated with early termination of the tenancy, when requested by the tenant
f) Payments in respect of utilities, communication services, TV licence and council tax; and
g) A default fee for late payment of rent and replacement of a lost key/security device, where required under a tenancy agreement

Please call us if you wish to discuss this further.

/// fond.singing.tarnished is the what3words address for the best entrance. what3words has given every 3 metre square in the world a unique combination of 3 random words.

Floor Plan
EER Chart

The Energy-Efficiency Rating is a measure of a home's overall efficiency. The higher the rating, the more energy-efficient the home is, and the lower the fuel bills are likely to be.

Utility Supply Type
Electric Mains Supply
Gas Mains Supply
Water Mains Supply
Sewerage Mains Supply
Broadband FTTC
Telephone None

Other Items Description
Heating Gas Central Heating
Garden/Outside Space Yes
Parking Yes
Garage No

Broadband Coverage Highest Available Download Speed Highest Available Upload Speed
Standard 17 Mbps 1 Mbps
Superfast 80 Mbps 20 Mbps
Ultrafast Not Available Not Available

Mobile Coverage Indoor Voice Indoor Data Outdoor Voice Outdoor Data
EE Likely Likely Enhanced Enhanced
Three Likely Likely Enhanced Enhanced
O2 Likely Likely Enhanced Enhanced
Vodafone Likely Likely Enhanced Enhanced

Broadband and Mobile coverage information supplied by Ofcom.


marker icon