Price £1,650 pcm - Available 18/12/2025 - Unfurnished


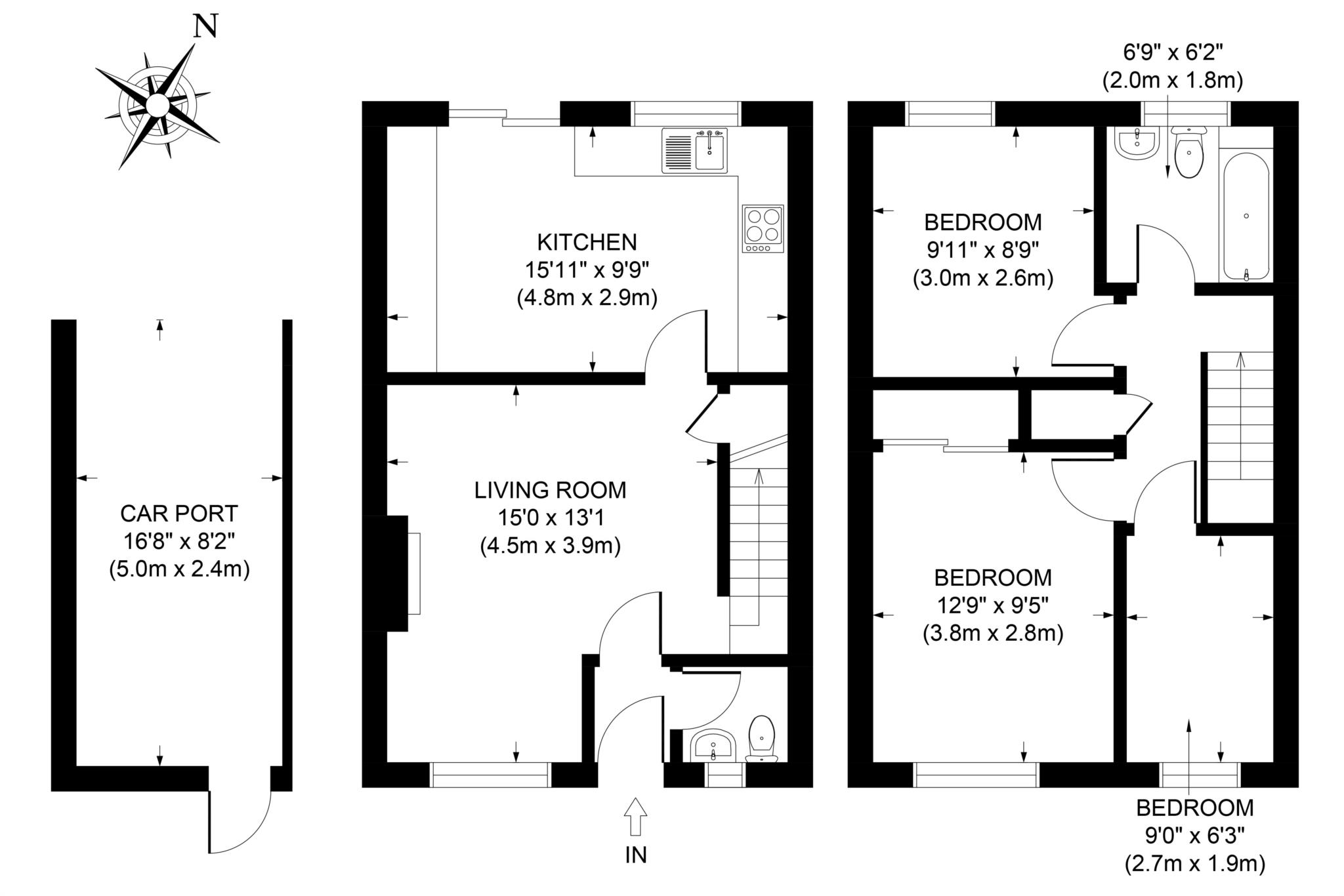
ENTRANCE HALL : CLOAKROOM : SITTING ROOM : KICTHEN/DINING ROOM : THREE BEDROOMS : LUXURIOUS BATHROOM : ENCLOSED FRONT GARDEN : PRIVATE REAR GARDEN : CAR PORT

SITUATION
The historic small market town of Tring is surrounded by beautiful Chilterns countryside and yet only a few miles away from routes providing excellent access to London. Tring town centre provides a range of small specialist shops, restaurants and public houses. Excellent schooling is available for all ages, including independent schools such as The Tring Park School for Performing Arts and The Berkhamsted School. Communications are superb with access to the A41 (providing a direct link to the M25 J20) and from there the national motorway network. Tring main line station provides a fast and frequent service in to London Euston in approximately 36 minutes.

LOCAL AUTHORITY
Dacorum Borough Council

VIEWING
By appointment with Cesare & Co, 48 High Street, Tring, Hertfordshire, HP23 5AG.

IMPORTANT NOTICE
Although these particulars, together with any photographs and/or any floor plans, are intended to give a fair description of the property, they do not constitute any offer or any part of a Contract. The Vendors, his Agents, Cesare & Co and persons in the employment do not give any warranty whatever in relation to this property. All measurements are approximate. Any appliances and/or services mentioned within these particulars have not been tested or verified by the Agent. All negotiations should be conducted through Cesare & Co.



Deposit: £1,903.00

Council Tax
Dacorum Borough Council, Band D

Notice
All photographs are provided for guidance only.

The following are permitted payments which we may request from you:

a) The rent
b) A refundable tenancy deposit (reserved for any damages or defaults on the part of the tenant) capped at no more than five weeks' rent where the annual rent is less than £50,000, or six weeks' rent where the total annual rent is £50,000 or above
c) A refundable holding deposit (to reserve a property) capped at no more than one week's rent
d) Payments to change the tenancy when requested by the tenant, capped at £50, or reasonable costs incurred if higher
e) Payments associated with early termination of the tenancy, when requested by the tenant
f) Payments in respect of utilities, communication services, TV licence and council tax; and
g) A default fee for late payment of rent and replacement of a lost key/security device, where required under a tenancy agreement

Please call us if you wish to discuss this further.
Floor Plan
EER Chart

The Energy-Efficiency Rating is a measure of a home's overall efficiency. The higher the rating, the more energy-efficient the home is, and the lower the fuel bills are likely to be.

Utility Supply Type
Electric Mains Supply
Gas Mains Supply
Water Mains Supply
Sewerage Mains Supply
Broadband FTTC
Telephone None

Other Items Description
Heating Gas Central Heating
Garden/Outside Space Yes
Parking No
Garage No

Broadband Coverage Highest Available Download Speed Highest Available Upload Speed
Standard Unknown Unknown
Superfast Unknown Unknown
Ultrafast Unknown Unknown

Mobile Coverage Indoor Voice Indoor Data Outdoor Voice Outdoor Data
EE Unknown Unknown Unknown Unknown
Three Unknown Unknown Unknown Unknown
O2 Unknown Unknown Unknown Unknown
Vodafone Unknown Unknown Unknown Unknown

Broadband and Mobile coverage information supplied by Ofcom.


marker icon